点击数:35992020-09-20 00:00:00 来源: 模板脚手架展览会
随着建筑业的飞速发展,建筑新型模板技术应运而生,并且得到了越来越普遍的应用。尤其是新型建筑铝模板的广泛应用不但可以有效增长施工工艺,还可以提高建筑工程质量,重要的是弥补了我国建筑施工技术的不足,加快了我国建筑业的发展,且成效显著。
铝模板系统分为模板系统、支撑系统、紧固系统、附件系统。支撑系统是伴随着建筑施工要求而产生并发展起来的,是施工作业中必不可少的措施和设备。
铝模板支撑系统中单支顶、斜支撑、水平拉杆等在混凝土结构中起支撑作用,保证楼面、梁底及悬挑结构的支撑稳固。竖向为准确调节标高,斜向为准确调节墙体垂直度,可控误差范围在3-5mm内。



支撑系统的组成
1.梁模板支撑体系
梁模板支撑体系采用单立柱支撑,立杆间距不超过1.2m,根据梁的长度和受荷布置在梁的底侧。
2.板模板支撑体系
板底支撑体系采用单支撑,支撑间距不超过1.3m,根据梁的长度和受荷布置在梁的底部,并在浇筑混凝土时设置临时支撑1套。
3.剪力墙模板支撑体系
剪力墙模板采用背楞与对拉螺杆相结合,对拉螺杆间距小于1m,整片墙体采用两边对拉且上下呈三角形的支撑体系。
支撑系统安装过程中的控制要点
梁模板的安装
1. 在楼板面上把已清理干净的梁底板、早拆头、阴角模按正确的位置用插销钉好。尤其注意早拆头的支撑必须与下层的梁底支撑在同一垂直中心线上,以保证混凝土结构的安全。
2. 安装梁底板时须2人协同作业,一端一人托住梁底的两端,站在操作平台上,按规定的位置用插销把阴角模与墙板连接。
如梁底过长,除两人装梁底外,另有一人安装梁底支撑,以免梁底模板超重下沉,使模板早拆头变形和影响作业安全。

3. 用支撑把梁底调平后,可安装梁侧模板,所有横向连接的模板,插销必须由上而下插入,以免在浇砼捣振时插销震落,造成爆模和影响安全。
顶板模板的安装
1.安装完墙梁顶部的阴角模后,安装楼面龙骨,然后按试拼装编号图安装顶板,依次拼装标准板模,直至铝模全部拼装完成。楼面龙骨早拆头下的支撑杆应垂直,无松动。

2. 每个开间顶板安装完成后,须调整支撑杆到适当位置,以使板面平整。跨度4m以上的顶板,其模板应按设计要求起拱,如无具体要求,铝合金模板起拱高度一般取1/1000。
墙柱模板的安装
1. 刷脱模剂
将下层已拆除并清理干净的模板按区域和顺序上传摆放稳当。重叠堆放时,应使板面朝上,方便涂刷脱模剂,然后逐块涂刷脱模剂,避免后续混凝土浇捣出现粘模现象。
2. 内墙模板临时固定
内墙模板安装时从阴角处(墙角)开始,按模板编号顺序向两边延伸,为防模板倒落,须加设临时固定斜撑(用木方、钢管等),并保证每块模板涂刷适量的脱模剂。
3. 打销钉
竖向模板一般每300mm钉1个销钉,打销钉时不可太用劲,模板接缝处无空隙即可。横向拼接的模板端部插销必须钉上,中间可间隔一个孔位钉上,并且是从上而下插入,避免振捣混凝土时脱落。
4. 对侧墙模板安装
安装另一侧墙模时,在拉片孔位置附近把尺寸相符内撑钢筋垂直放置在剪力墙的钢筋上,检查拉片穿过是否有钢筋挡住(特别是墙、柱下部),如挡住,应使用工具将钢筋进行小幅度的移位,保证PVC导管能顺畅通过。两侧模板拉片孔位必须正对,这也是检查墙板安装是否正确的方法之一。
5. 调整垂直度
每面墙模板在封闭前,一定要调整两侧模板,使其垂直竖立在控制线位上,才能保证下一道工序的顺利进行。
6. 背楞安装
背楞安装应从下往上,先外墙后内墙。阳角部位背楞限位条应紧靠模板内侧边缘,先安装阴角部位背楞,后安装阳角部位,阳角位置安装必须水平拉紧。每装一条背楞,必须安装铁片及山形螺母,铁片垂直扣住背楞,随后紧固山形螺母,山形螺母外露螺杆保护丝应≥50mm。

墙封板位置应安装对拉螺杆,对拉螺杆超出背楞两端的距离应保持一致。两侧背楞均安装完成后,再次加固山形螺母,由两人在墙两侧同时配合施工。
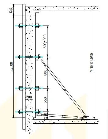
7. 斜撑安装
(1)柱、墙模板两侧需安装斜撑,用φ14的钢筋做成马凳提前预埋,作为斜撑底座支撑受力点,斜撑间距不大于2000mm。
宽度≥2000mm的墙体设置不少于两组斜撑,宽度<2000mm的墙体或短肢剪力墙设置不少于一组斜撑,两边斜撑离封板距离300mm。
每组斜撑由长边杆件、短边杆件和固定码组成。固定码离墙距离需满足斜撑杆件长边角度为45度-55度,斜撑杆件直角边角度为10度-15度。
(2)对于外墙等只能在一侧安装斜撑的部位,同侧斜撑位置应安装铁链拉紧,形成双向约束。